Atelier
This private residence in Cologne once housed a business and artist’s gallery. For our client, we transformed the space into an apartment while preserving the character and atmosphere of an atelier.
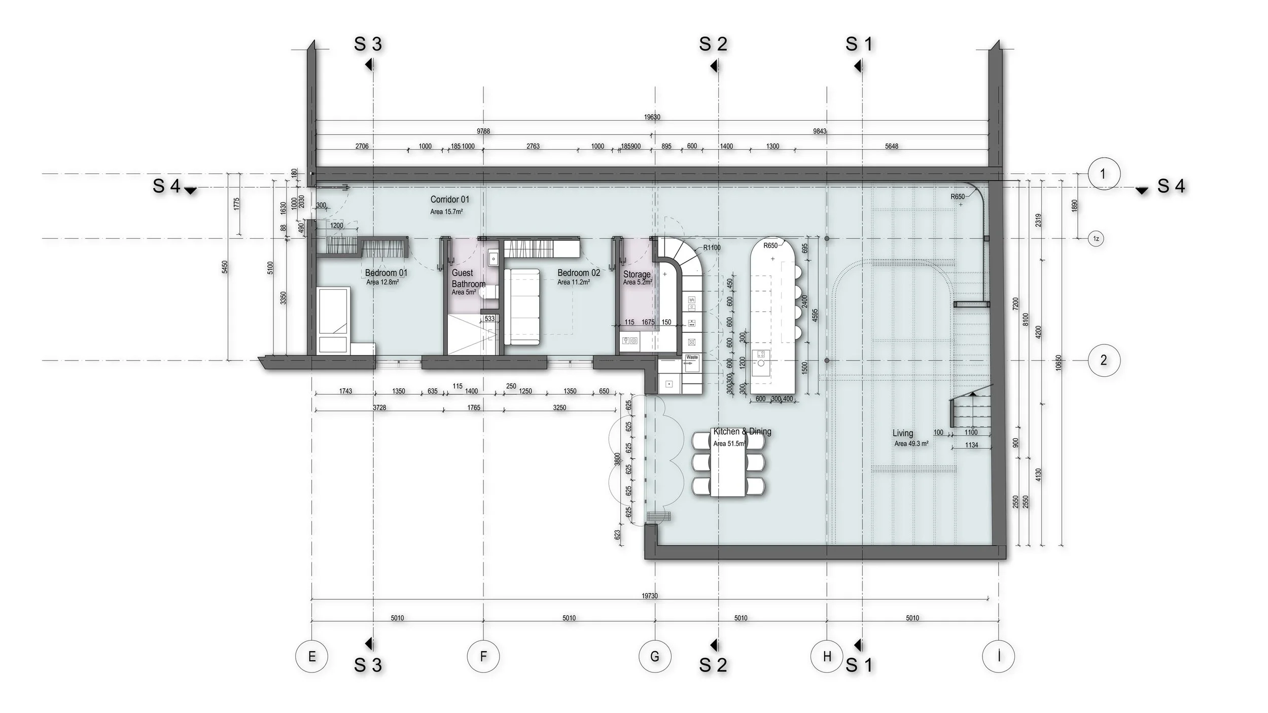
As the building is protected under monument law, the exterior could not be altered. We therefore retained the striking steel window frames, which allow beautiful natural light to fill the interior.
Inside, we focused on creating a sense of flow and movement throughout the generous, high-ceilinged space. The second floor accommodates the private quarters, while the upper level provides additional bedrooms. Ample wall and open areas were also designed to display art, keeping the creative spirit of the building alive.
Program: Residential
Client: Undisclosed
Location: Germany









